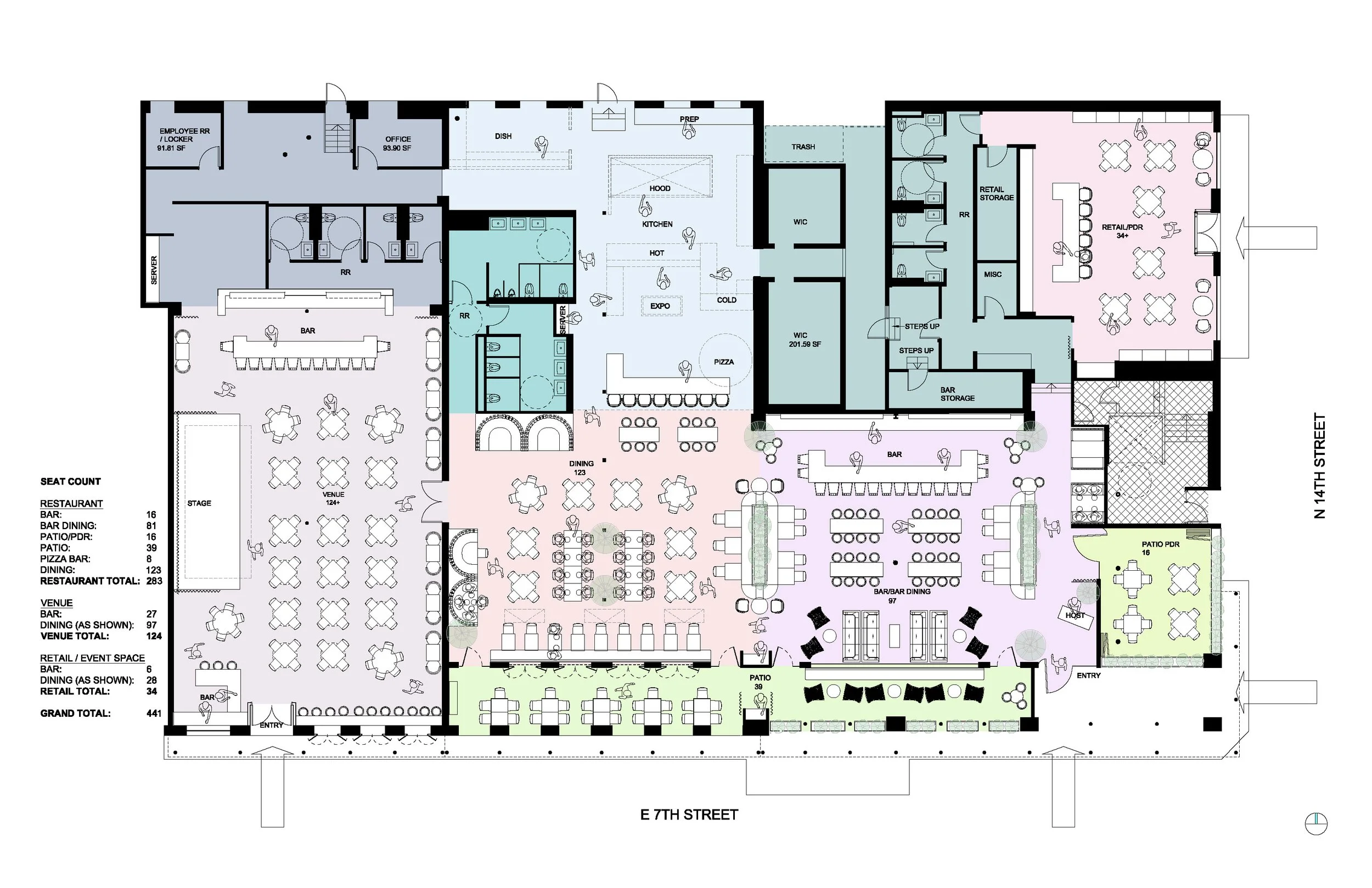
LUCILLE

Location : Tampa, FL

Status : Idea

Role : Design development, material selection, 3D modeling, renderings

Softwares : AutoCAD, SketchUp, Enscape, Illustrator

Lucille will bring its unique dining experience to Ybor City, Florida, featuring a design inspired by its tri-level venue in Madison. Offering fresh cocktails, craft beer, wood-fired and Wisco-Detroit pizzas, and Pan-Latin cuisine, Lucille will create a warm, fun atmosphere reflecting the neighborhood’s vibrant culture and lifestyle.