
CENTERPOINT AT WATERSIDE
Location : Lakewood Ranch, FL
Status : In construction
Role : 3D modeling, construction documents, tenant criteria manuals, renderings
Softwares : AutoCAD, Illustrator, SketchUp, Enscape, Photoshop

McDonald’s

7-Eleven

Owen's Fish Camp

Roper Technologies

Ruth's Chris Steak House

Ruth's Chris Steak House
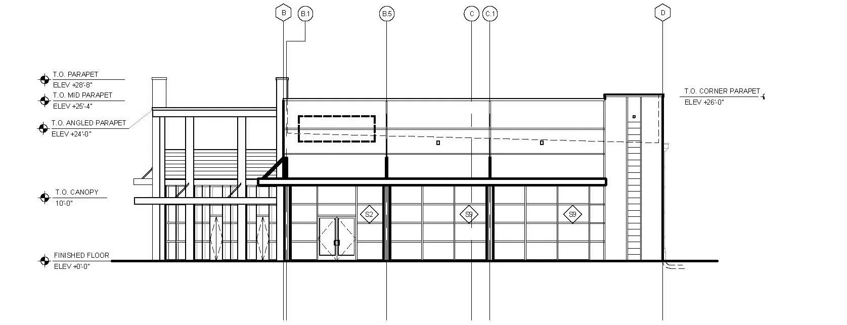
BUILDING C - NORTH ELEVATION
BUILDING C - SOUTH ELEVATION
BUILDING C - WEST ELEVATION
BUILDING C - NORTH PARTIAL ELEVATION
BUILDING C - EAST ELEVATION